a new dutch door front entry
I am so pleased to share our new front door today. We replaced our traditional front door with a new Dutch door for our front entry. Here are all the details and why we chose a Dutch door style for our entry way.

We absolutely love how it joins our outdoor and indoor spaces in such a rustic and organic way. Come on in. We ordered the door in October and just had it installed last month. Yes, good things come to those who wait.

We opted for a wood grain door instead of a paint grade. I wanted the rustic feel of the wood to give that provincial countryside farmhouse feel. This was the inspiration for our door {thank you Pinterest}:

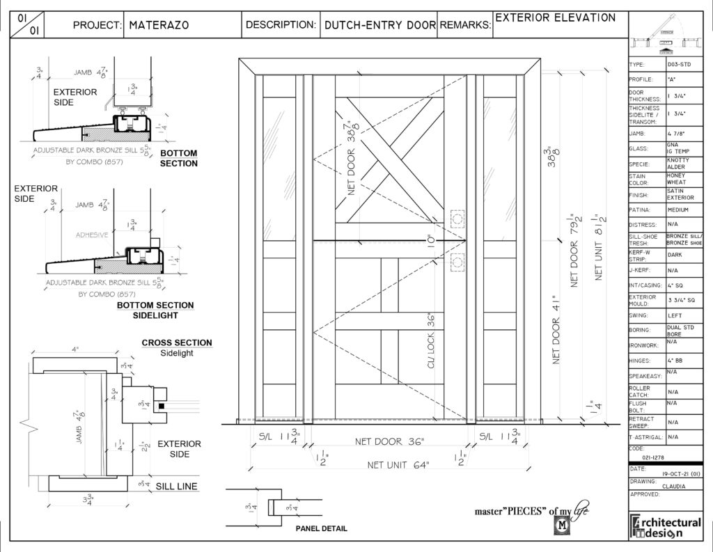
We had the door custom made {one of the many reasons it took so long} based off the picture above plus we added the two side light panels with windows on the upper half. Here is the design diagram with all the architectural details.

The windows have tempered glass with a vintage design. It’s not very noticeable but it distorts the images so it provides some privacy when looking from the outside in.

Definition of a Dutch door
A Dutch door is one that is split in half, but unlike French doors, they are sliced horizontally. The top and bottom halves can be opened separately, but both sides can also be locked in place to open as a full door. These doors are also called half doors or stable doors.

Originating in the farmlands of the Netherlands, these split doors found their way to Dutch settlements in the early American colonies of New England. Dutch doors were a practical solution that allowed the breeze and sunlight to come into the house without letting children out or animals and pests in. Because these split doors were prominent features of Dutch Colonial homes, the association with the Dutch stuck.

I love the burst of character the new Dutch door front entry adds to our home. Like I told the folks who own Antigua Doors, where we purchased our door, I view it as the jewelry for our home. It provides a charming curb appeal.

Pros and Cons of a Dutch door
- Pros
- ??Adds a strong country charm; providing cottage & farmhouse appeal
- ??Provides safety for little ones & pets while still enjoying the outside
- ??Allows for air flow through the house
- ??Connects the interior spaces to the outdoors
- ??Prevents dirt and dust from entering
- Cons
- ??Invites insects in certain areas
- ??Costs more than a regular door
- ??Requires additional hardware than a regular door

Where you live and how you live will determine how the advantages and disadvantages of a Dutch door affect you and if it’s the right choice for you. It fits our lifestyle beautifully.

In Northern California we do not have issues with bugs. We own a furry family member so it helps keeping Bailey safe while still having the openness and wonderful breezes.

The weather lends itself to outdoor living for much of the year around here so we are excited to connect our yard and sitting area to our home. The front yard remodel has established itself nicely and you can read about it here {as 2020 unraveled}.

With the Dutch door we will be able to enjoy our front yard space even more while still inside the house. You can read about the {front yard sitting area} we created and the fence Mister and Master M built {the Hogwire Fence Project}. Also last summer we added the water fountain to our front yard sitting area {why you should have a water feature in outdoor spaces}.

We just had an arborist service our Locust tree in the front yard and we plan to hopefully finish the plantings for the front yard space this year. Of course I will share everything here as it unfolds.
If you don’t want to miss out on any of the upcoming projects you can subscribe to receive all my new posts to your in-box.
Dutch door hardware and installation
Since Dutch doors are comprised of two parts that swing independently they require 4 hinges instead of the customary 3 hinges for traditional doors. Each section {top & bottom} gets a set of hinges or two each.

Additionally, besides the knob and lock found on most doors there’s also a latch on Dutch doors that interlocks both parts so they swing together. There’s a special latch to attach the two sections in Dutch doors called quadrant, but I am not partial to the design so we opted for a traditional latch.

Dutch doors are trickier to install than normal doors since you are hanging two separate parts that need to line up perfectly when hung in the door jamb. It is recommended to have a professional install Dutch style doors, assuring they are weather tight. In most cases, the door frame needs shimmering and adjusting even if you purchase a pre-hung Dutch door.

We are very happy we had our door professionally installed since it took a.l.l d.a.y l.o.n.g for two guys to install it. Of course our floors and walls weren’t even so they made sure it all lined up perfectly. It was so worth it. We absolutely love how our new Dutch door looks in the entry way.

We love the old world feel our new Dutch door has afforded our home, plus we enjoy all the practical uses it provides. For funnies here’s a side by side before and after.


“Always be on the lookout for the presence of wonder.”
E.B WhitE

LOVE!!! Such a beautiful door, I adore the black contrast. Those workers seem great! 🙂
You know it! ?? XOXO
Your door is so gorgeous! I know you have to be so excited about it! Looks great, Donna
Thanks so much Donna! Yes, we have it open everyday. We love it. XO- MaryJo
I am SO jealous! I have ALWAYS wanted a dutch door! Love it:) Thanks for sharing at Vintage Charm. xo Kathleen
Thanks Kathleen. We are so happy with it! XO- MJ
Your new Dutch door is lovely, and it perfectly complements the architecture of your house. Your landscaping and curb appeal are spot on — what a lovely home.
Carol
http://www.scribblingboomer.com
Thanks Carol. Since we’ve done it all ourselves it’s so very nice to hear. Thank for stopping by and the sweet comment. XO- MJ
I am jealous I always wanted a Dutch door! Thanks for sharing at Vintage Charm. xo Kathleen
I love it! It looks absolutely amazing. I would love to be able to put one in our new home (closing on the 29th, so I’m counting down lol), but we live on the Gulf Coast where mosquitos, gnats, and horseflies abound, so alas, I’m afraid my dream will never be realized. The look perfectly completes the front of your house. Thanks for sharing with us on Crafty Creators!
XOXO,
Niki ~ Life as a LEO Wife
Congrats on the new place. Yes bugs are tricky with these doors. I did read about retractable screens for dutch doors during my research so that could be an option for you? Thanks for dropping by. XO- MJ
Your new door is so gorgeous!! Thanks for sharing the history of Dutch doors too! Feel free to share this post on Tuesday Turn About Link Party this week!
Thanks so much Cindy. We love our new door. Yes! I love joining the Turn About party every week, Thanks so much for hosting. XO- MJ